Dobrodošli.
+381 69 2611 519
dldprodoo@gmail.com
Pon-Pet: 8am - 16pm
POČETNA
O NAMA
LOKACIJE
ŽELEZNIČKA 33
OZRENSKA 13
OZRENSKA 17
GOČKA 57v
SVI STANOVI
IZDAVANJE
NOVOSTI
KONTAKT
Jednosoban Stan, 42.96m²
Početna
Gočka 57v
;
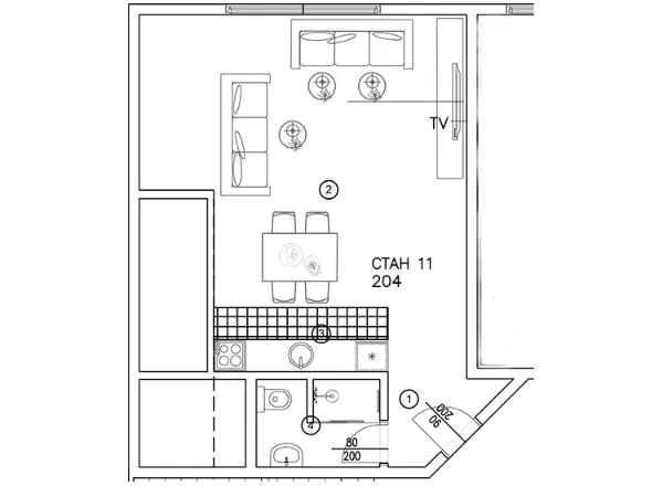
POZICIJA STANA NA ETAŽI
Drugi sprat, stan broj 11
3D PRIKAZ STANA
PROSTORIJE, KVADRATURA I OBRADA PODA
Ukupna površina: 42.96 m
2
#
PROSTORIJA
OBRADA PODA
POVRŠINA
1
Predsoblje
parket
4.52 m²
2
Dnevna soba sa trpezarijom
parket
30.79 m²
3
Kuhinja
keramika
3.92 m²
4
Kupatilo
keramika
3.73 m²
UKUPNO:
42.96 m²
2D PRIKAZ STANA
PRIKAZ LOKACIJA NA MAPI
Gočka 57v, Beograd
OPREMA I MATERIJALI