Dobrodošli.
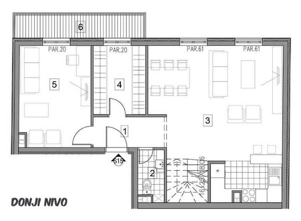
| # | PROSTORIJA | OBRADA PODA | POVRŠINA |
|---|---|---|---|
| 1 | Ulaz-hodnik | parket | 4.11 m² |
| 2 | Toalet | keramika | 2.42 m² |
| 3 | Boravak, trpezarija, kuhinja | parket, keramika | 34.48 m² |
| 4 | Garderoba | parket | 6.85 m² |
| 5 | Soba | parket | 13.62 m² |
| 6 | Terasa | keramika | 6.37 m² |
| Prizemlje: | 67.85 m² | ||
| 7 | Hodnik | parket | 4.31 m² |
| 8 | Kupatilo | keramika | 5.09 m² |
| 9 | Soba | parket | 12.55 m² |
| 10 | Kupatilo | keramika | 5.43 m² |
| 11 | Soba | parket | 10.50 m² |
| 12 | Soba | parket | 11.16 m² |
| 13 | Garderoba | parket | 5.02 m² |
| 14 | Stepenište | keramika | 3.38 m² |
| 15 | Terasa | keramika | 16.64 m² |
| Sprat: | 74.08 m² | ||
| UKUPNO: | 141.93 m² | ||
Španski teniser Alehandro Davidovič Fokina imao je itekako reči hvale za Žoaa Fonseku, koji ga je savladai u finalu turnira u Bazelu.