Dobrodošli.
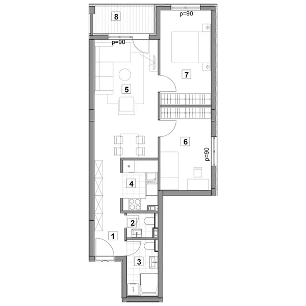
| # | PROSTORIJA | OBRADA PODA | POVRŠINA |
|---|---|---|---|
| 1 | Ulaz-degažman | parket | 7.23 m² |
| 2 | Toalet | keramika | 1.72 m² |
| 3 | Kupatilo | keramika | 4.70 m² |
| 4 | Kuhinja | keramika | 4.65 m² |
| 5 | Boravak, trpezarija | parket | 19.72 m² |
| 6 | Soba | parket | 11.14 m² |
| 7 | Soba | parket | 12.68 m² |
| 8 | Lođa | keramika | 4.69 m² |
| UKUPNO: | 66.53 m² | ||