Dobrodošli.
+381 69 2611 519
dldprodoo@gmail.com
Pon–Pet: 8am – 16pm
POČETNA
O NAMA
O NAMA
ZAVRŠENI OBJEKTI
LOKACIJE
ŽELEZNIČKA 33
OZRENSKA 13
OZRENSKA 17
GOČKA 57v
SVI STANOVI
IZDAVANJE
NOVOSTI
KONTAKT
Jednoiposoban stan, 46.16m²
Početna
Železnička 33
064 822 7316
Za više informacija pozovi
;
POZICIJA STANA NA ETAŽI
Drugi sprat, stan broj 24
3D PRIKAZ STANA
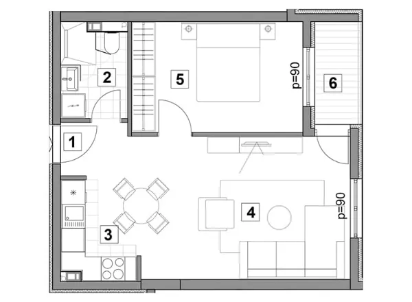
PROSTORIJE, KVADRATURA I OBRADA PODA
Ukupna površina: 46.16 m
2
#
PROSTORIJA
OBRADA PODA
POVRŠINA
1
Ulaz
parket
2.29 m²
2
Kupatilo
keramika
3.89 m²
3
Kuhinja
keramika
4.97 m²
4
Boravak, trpezarija
parket
19.75 m²
5
Soba
parket
12.14 m²
6
Lođa
keramika
3.12 m²
UKUPNO:
46.16 m²
2D PRIKAZ STANA
PRIKAZ LOKACIJA NA MAPI
Železnička 33, Beograd
OPREMA I MATERIJALI