Dobrodošli.
+381 69 2611 519
dldprodoo@gmail.com
Pon–Pet: 8am – 16pm
POČETNA
O NAMA
O NAMA
ZAVRŠENI OBJEKTI
LOKACIJE
ŽELEZNIČKA 33
OZRENSKA 13
OZRENSKA 17
GOČKA 57v
SVI STANOVI
IZDAVANJE
NOVOSTI
KONTAKT
Dvosoban stan, 53.37m²
Početna
Gočka 57v
064 822 7316
Za više informacija pozovi
;
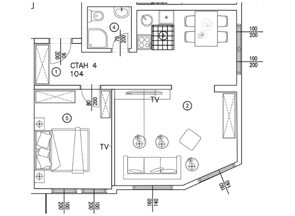
PROSTORIJE, KVADRATURA I OBRADA PODA
Ukupna površina: 53.37 m
2
#
PROSTORIJA
OBRADA PODA
POVRŠINA
1
Predsoblje
parket
6.06 m²
2
Dnevna soba sa trpezarijom
parket
27.50 m²
3
Kuhinja
keramika
2.34 m²
4
Kupatilo
keramika
2.94 m²
5
Spavaća soba
parket
12.26 m²
6
Ostava
keramika
2.27 m²
UKUPNO:
53.37 m²
2D PRIKAZ STANA
PRIKAZ LOKACIJA NA MAPI
Gočka 57v, Beograd
OPREMA I MATERIJALI