Dobrodošli.
+381 69 2611 519
dldprodoo@gmail.com
Pon-Pet: 8am - 16pm
POČETNA
O NAMA
LOKACIJE
ŽELEZNIČKA 33
OZRENSKA 13
OZRENSKA 17
GOČKA 57v
SVI STANOVI
IZDAVANJE
NOVOSTI
KONTAKT
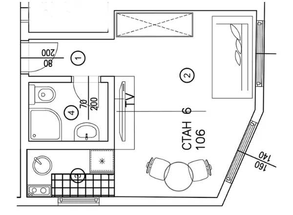
Garsonjera Stan, 24.39m²
Početna
Gočka 57v
;
POZICIJA STANA NA ETAŽI
Prvi sprat, stan broj 6
3D PRIKAZ STANA
PROSTORIJE, KVADRATURA I OBRADA PODA
Ukupna površina: 24.39 m
2
#
PROSTORIJA
OBRADA PODA
POVRŠINA
1
Predsoblje
parket
1.87 m²
2
Dnevna soba sa trpezarijom
parket
14.65 m²
3
Kuhinja
keramika
2.47 m²
4
Kupatilo
keramika
2.76 m²
5
Ostava
keramika
2.64 m²
UKUPNO:
24.39 m²
2D PRIKAZ STANA
PRIKAZ LOKACIJA NA MAPI
Gočka 57v, Beograd
OPREMA I MATERIJALI